Разработка технологических карт для ремонта промышленного оборудования в Санкт-Петербурге

Разработка ТК на ремонт ПО - важный и необходимый документ, на основе которого выполняется техническое обслуживание и замена производственных линий, узлов и агрегатов оборудования цехов на территории заводов фабрик и предприятий. Этот документ должен обладать абсолютной технической точностью, последовательностью в ремонте и является своего рода инструкцией для всего персонала в зоне ответственности которого лежат работы по обслуживанию и эксплуатации ПО. ТК данного типа включают как процессы, связанные с уникальными особенностями ремонта того или иного оборудования, так и работы связанные со строповкой тяжелых частей, их перемещением, разгрузкой и заменой.

Исходные данные для разработки технологических карт обслуживания и ремонта оборудования
Для разработки ТК на ремонт и обслуживание заводского оборудования мы обычно запрашиваем у наших заказчиков следующий перечень исходных данных:
- паспорта на оборудование;
- чертежи оборудования (желательно ред. формат) ;
- перечень грузоподъемного ПО на предприятии и паспорта к ним;
- перечень строп и грузозахватных приспособлений с их техническими характеристиками;
- производственные регламенты по обслуживанию и ремонту ПО фабричных цехов;
- чертежи и разрезы зданий предприятия, планы цехов, помещений внутри которых ведутся работы по ремонту оборудования

Состав Технологических карт, особенности разработки ТК
В ТК на ремонт ПО могут встречаться описание таких технологических микропроцессов как:
- погрузочно-разгрузочные работы с использованием вилочных погрузчиков, мостовых кранов, автомобильных кранов и т.д.;
- работы по строповке элементов оборудования, их временному подвешиванию или перемещению с использованием ручных цепных талей;
- работы по монтажу строительных лесов и обстройке ПО для удобства их ремонта и обслуживания;
- работы на высоте с использованием средств подмащивания, СИЗ от падения с высоты, установке анкерных точек, анкерных линий и т.д.;
- работы по шлифовке, зачистке и сварке элементов оборудования.
Также в состав ТК данного типа необходимо включить раздел по контролю качества выполненных работ, спецификации расходных материалов, инструментов, оборудования и техники для выполнения ремонтных работ.
Особое внимание рекомендуется уделить такому разделу как “Охрана труда” на производственных объектах.
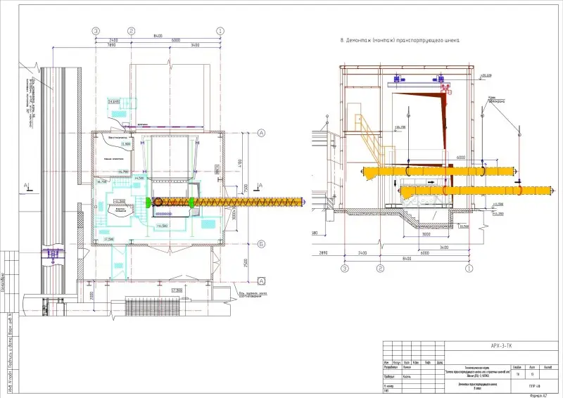
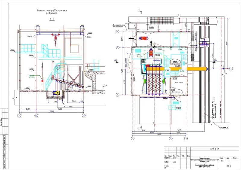
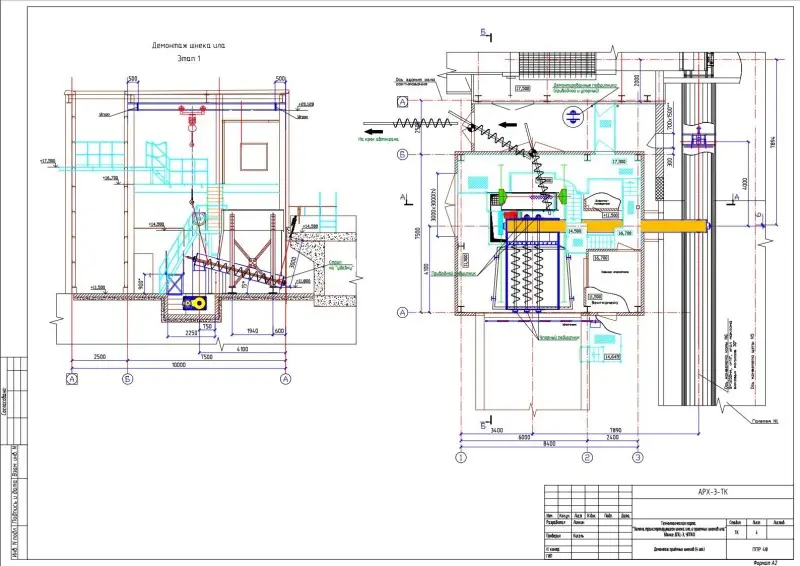
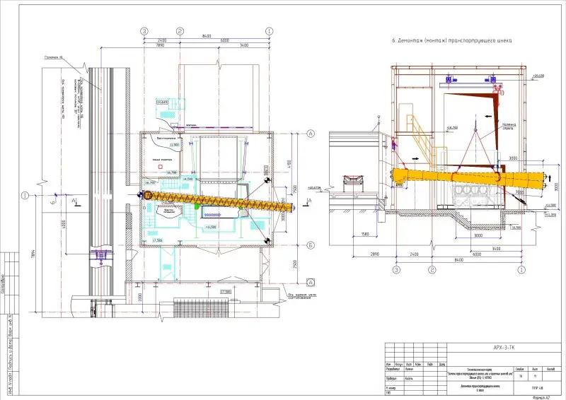
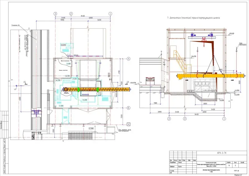
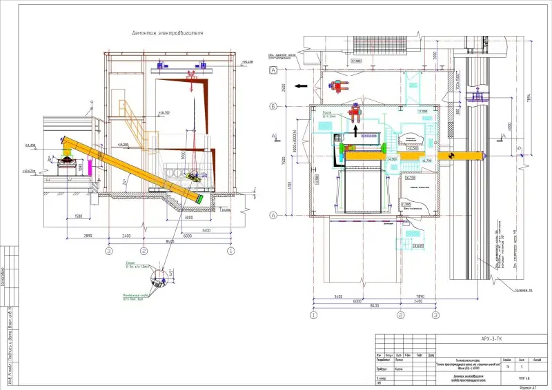
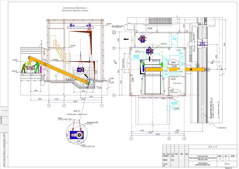
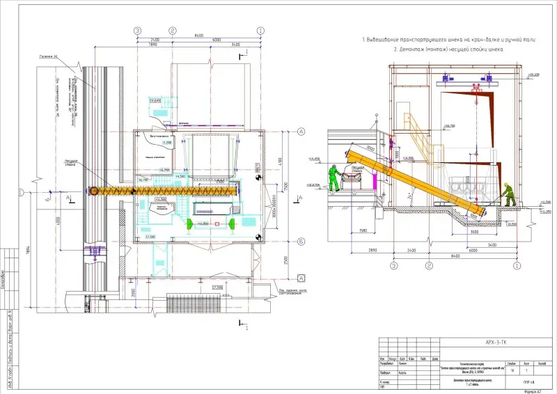
Кроме всего прочего мы в обязательном порядке включаем в состав ТК графические схемы и чертежи работы грузоподъемной техники, схемы строповки и складирования материалов и элементов оборудования.
В некоторых случаях мы дополняем ТК временными схемами организации движения персонала и техники на территории промышленного предприятия.

Факторы влияющие на ценообразование ТК на ремонт технологического оборудования
Разработка ТК на ремонт промышленного оборудования - не является дешевым удовольствием, особенно если речь идет о старом и нестандартном ПО, унаследованным заводом от эпохи существования советского союза, либо уникальном оборудовании изготовленном под заказ для нужд конкретной фабрики завода или предприятия. Существует целая плеяда нестандартных машин и ПО, не имеющих аналогов в мире. Уникальное ПО требует уникальных ТК по его ремонту и обслуживанию. Разработка таких ТК - процесс творческий, требующий особых инженерных навыков, опыта и видения ситуации.
Стоимость разработки таких ТК также может быть обусловлена такими факторами, как:
- необходимость выезда наших специалистов на производственный объект;
- необходимость обследовании цехов, машин, фотофиксации и обмерных работах;
- потребность в переводе старых заводских чертежей в цифровой формат;
- потребность в проектировании дополнительных временных или постоянных железобетонных и металлических конструкций
Даже в самых технически-сложных случаях специалисты нашей компании могут помочь нашим заказчикам. За время нашей деятельности мы разработали сотни ТК на ремонт и обслуживание технологического оборудования. Создали стандарты и инструкции для десятков заводов и предприятий. Компания ППР 48 - обладает бесценным опытом и знаниями для решения задач по обеспечению завода всей необходимой технической документацией.


















































