Особенности разработки ппр на мачтовый подъёмник, фасадный подъёмник, АГП.
Разработка ППР на работы с подъёмниками, люльками, АГП от ППР48 в Санкт-Петербурге
От 30 тысяч. От 2х дней. 100% гарантия принятия надзорными органами.
Проекты производства работ (ППР) и(или) технологические карты (ТК), содержащие описание мероприятий, производимых на высоте, либо перемещение людей подъёмником с высотой подъёма выше 6 метров нормируются приказом Ростехнадзора от 26.11.2020 №461 об утверждении правил ФНП по ПС.
Особенности разработки ППР на работы с люльки

Под люлькой принято понимать средство, передвигающийся вдоль вертикальной плоскости и используемый для перемещения рабочих строителей.
Особенностью разработки ППР с такими характеристиками является выбор места установки опорных конструкций фасадного подъёмника, в том числе учёт несущей способности конструкции в месте установки, возможность расположения, достаточность и доступность места. Немаловажным фактором является подбор формы и размеров строительной люльки, которые подбираются исходя из множества аспектов, в числе которых архитектура вертикальной поверхности (например, фасад здания), количество захваток, одновременно работающих подъёмников и т.д.
Особенности разработки ППР на работы с мачтового фасадного подъемника

Под мачтовым подъёмником понимается, как правило, временное, на период строительства, фасадное оборудование, выполняющее функции доставки людей и(или) грузов на этажи (ярусы) устанавливаемое мачтой на нижнем уровне (с которого начинается подъём).
Особенностями разработки ОТД с данным видом ПС связаны с тем, что ОТД на их эксплуатацию по ФНП по ПС организации должна подготавливать при высоте подъёма свыше 6 метров при этом сохраняется обязанность описания работ на высоте свыше 1,8 м.
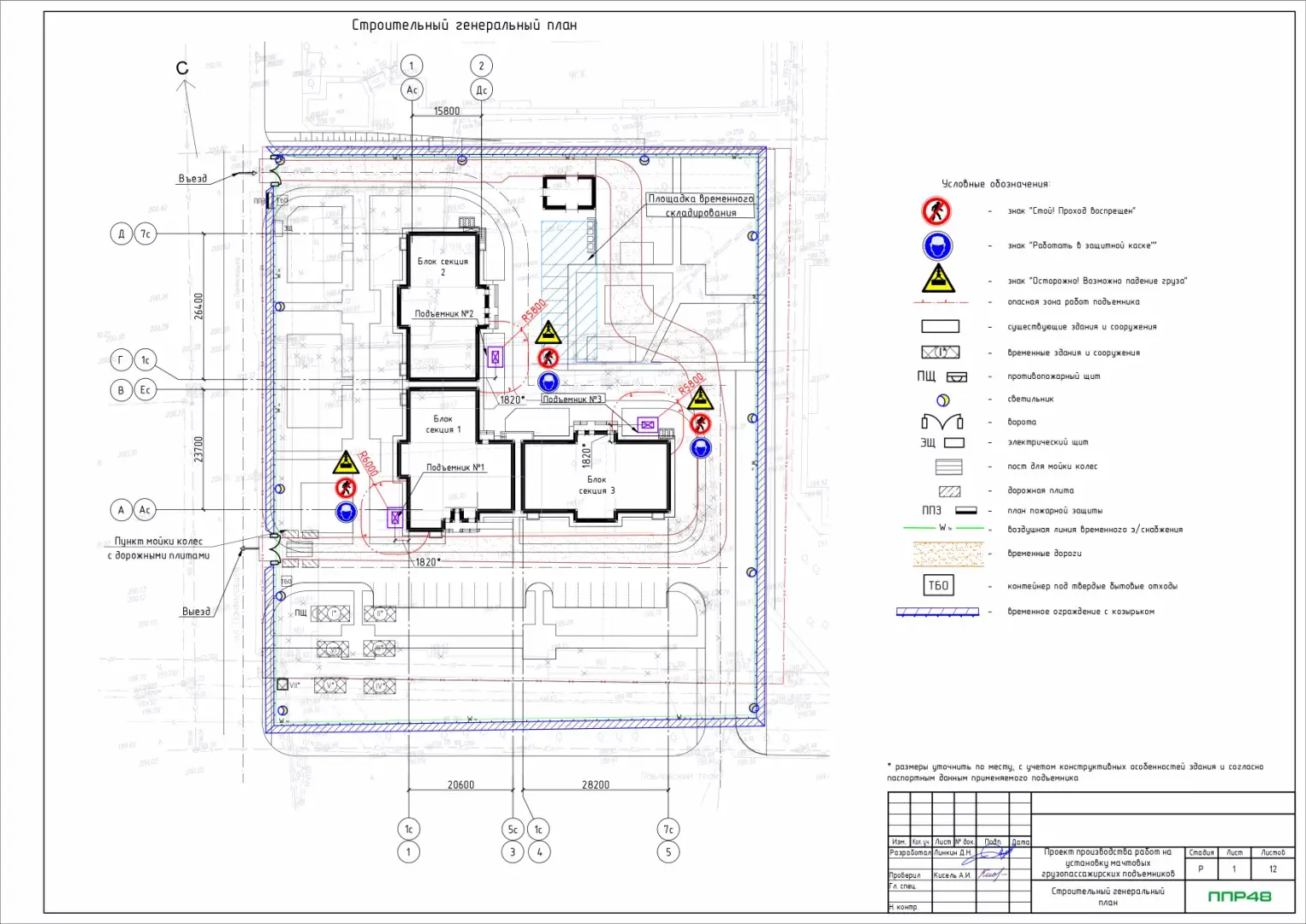
При разработке учитываются факторы оптимального расположения места монтажа мачтового фасадного подъёмника, по возможности, равноудалённой от мест производства работ, определение мер по защите сотрудников от случайного падения в местах остановки, ограничения в массогабаритных характеристиках и видах перемещаемых грузов, количество одновременно находящихся людей на платформе и т.п. В ряде случаев описывается установка мачтового подъёмника.
Особенности разработки ППР на работы с автовышки (АГП подъемник)

Под автовышкой или автомобильным подъёмником понимается, как правило, мобильное гидравлическое подъемное оборудование на автомобильном или специализированном шасси, предназначенное для подъёма только людей с ограниченным количеством инструментов. АГП используется в тех случаях, когда нецелесообразно или невозможно использовать иные виды подъёмников, для выполнения кратковременных работ в локальных местах.
К особенностям разработки следует отнести организацию места установки АГП, особенно вблизи котлованов, воздушных ЛЭП, действующих транспортных магистралей в зонах действия опасных зон, особенно при организации совместной работы с подъёмным краном или другим подъёмником. Кроме того, учёту подлежат, стеснённые условия, а также работы при сложной метеообстановке с обозначением критериев остановки работы.
Факторы, влияющие на стоимость разработки ППР, у кого и почему стоит заказывать
Как следует из вышеизложенного разработка ППР при работе с подъёмниками требует решения основанного на учёте множества факторов. Начиная от выбора наиболее оптимального типа подъемника для конкретных исходных условий эксплуатации, в основе которых лежит сложность места выполнения работ, количество задействованных средств, включая краны и заканчивая учётом специфических особенностей конструкции выбранного ПС. Подготовку такого рода документов следует поручать наиболее опытным сотрудникам, способным учитывать все необходимые условия монтажа (установки) и эксплуатации подъемных средств.
















































