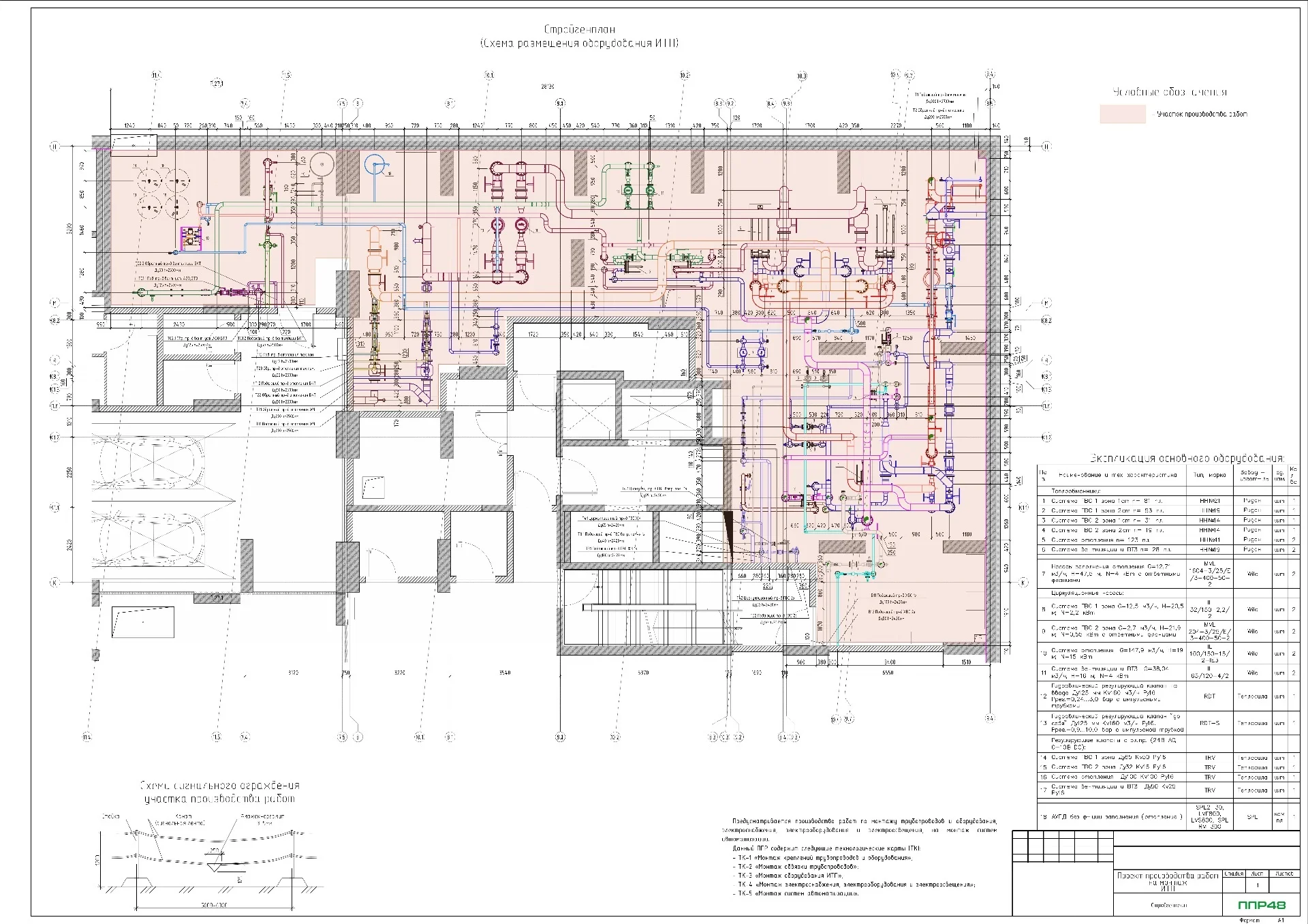
ППР на монтаж индивидуального теплового пункта
Разработка такого типа ОТД выполняется для детального описания работ как отдельно так в составе общего ППР или ТК по сборке, монтажу, пуско-наладке и испытаниям систем отопления. В ППР прописываются необходимые меры безопасности при вышеописанных операциях. Особое внимание уделяется местам взаимной увязки нового и существующего оборудования. В некоторых случаях может потребоваться отключение и(или) демонтаж существующего оборудования. Из не свойственных, но встречающихся работ необходимо отнести мероприятия по монтажу подопорных (опорных) или навесных конструкций. В некоторых случаях может потребоваться подготовка альбома КМД для упомянутых конструкций. Закажите в нашей компании расчет коммерческого предложения на разработку вашего документа и вы получите наилучший сервис и результат.
Особенности разработки проекта производства работ на монтаж ИТП
Особенности разработки связаны в первую очередь с разнообразием современных систем отопления, комбинации нескольких типов систем в одном проекте, и конечно же уникальностью решения для не типовых зданий и сооружений. Кроме того, в некоторых случаях в рабочей документации бывают прописаны повышенные требования к качеству выполнения работ или проведению дополнительных испытаний, что в свою очередь может потребовать более детальной проработки ППР.
Как и где заказывать ППР на ИТП, факторы, определяющие стоимость проекта
Заказывать ППР на ИТП следует в организациях с опытом подготовки подобных документов. В компании ППР48 очень профессионально и качественно выполнят подобную задачу.
К факторам, влияющим на стоимость необходимо отнести количество описываемых в ППР систем (насосов, фильтров, датчиков, системы автоматизации, КИПиА и т.п.) участвующих в составе ИТП, сложность монтажа, наличие действующих систем и выполнение их разборки, например при реконструкции здания. Требования проекта по описанию дополнительных испытаний (например разработка программы испытаний) и мер по обеспечению улучшенного качества работ. На стоимость ППР может повлиять отсутствие или не достаточная проработка подопорных конструкций и иные неучтённые факторы требующие дополнительного времени инженерного состава компании, которые мы в полном объёме обговариваем с Заказчиком до подписания договора.




































