Данный проект тесно связан с ППР на земляные работы.
ППР на устройство шпунтового ограждения от ППР48 в Санкт-Петербурге
От 2х дней. От 25 тысяч рублей. Бесплатное устранение замечаний. 100% гарантия согласования.
Оставьте заявку на разработку ППР по устройству шпунтового ограждения.
Компания ППР 48 начиная с 2016 года успешно выполняет проекты на устройство шпунтов различных видов, форм и назначений. Специалисты нашей компании обладают значительным опытом выполнения проектов данного типа. Это позволяет нам предлагать наилучшее качество и скорость разработки документации.
Состав ППР на устройство и монтаж шпунта
Состав ППР на устройство шпунтового ограждения должен включать следующие разделы:

- Подготовительные работы: Описание работ по определению границ участка, где будет установлено ограждение, проведения геодезических изысканий и маркировка мест установки шпунтов;
- Подготовка участка: Мы включаем в ППР мероприятия по очистке территории от растительности, камней и других препятствий, которые могут помешать установке ограждения, с также мероприятия по устройству временных инженерных сетей и бытового городка;
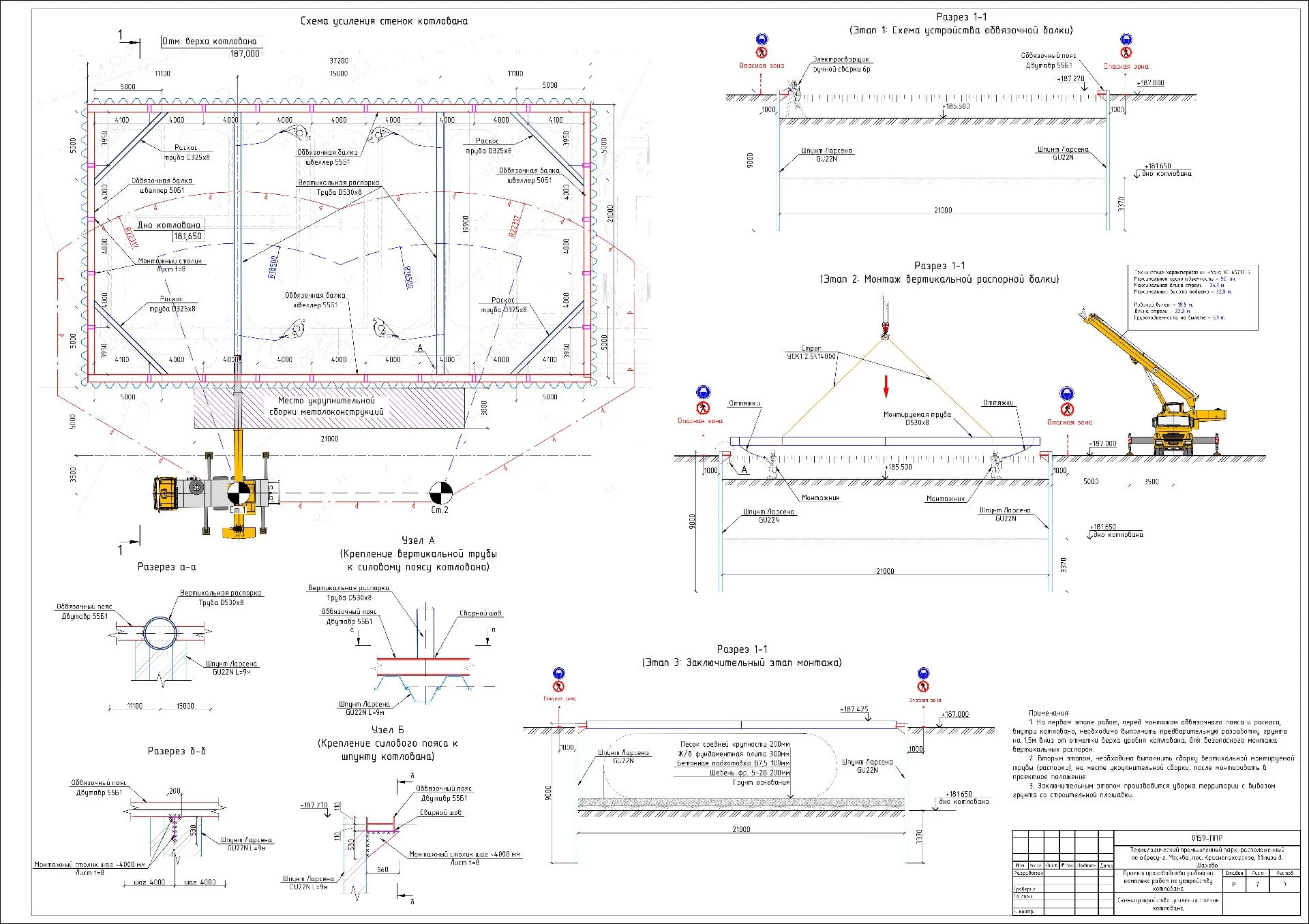
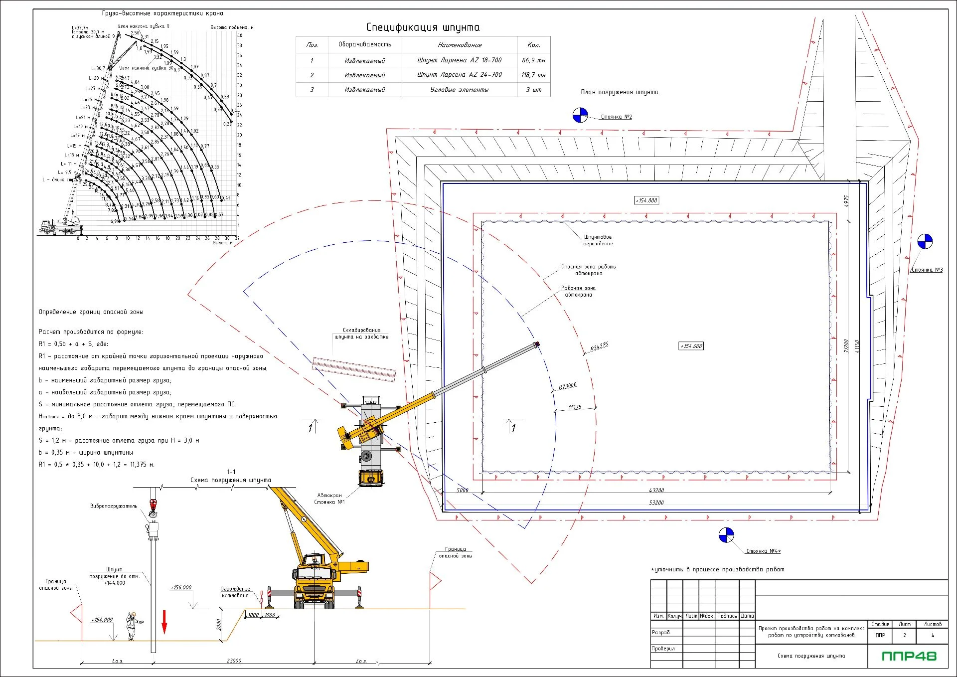
- Установка шпунтов: Специалисты ППР 48 детально опишут технологию по выполнению работ с помощью специализированного оборудования которое позволяет заглубить шпунты в грунт. Также мы опишем как именно оборудование должно быть установлено, на каком расстоянии друг от друга и т.д;
- Установка балок: В некоторых случаях на шпунты устанавливаются обвязочные балки, которые образуют каркас ограждения. Технологию монтажа обвязочного пояса и распорок в обязательном порядке необходимо раскрыть в ППР.
- Заключительные работы: Согласно "СП 48.13330.2019. Свод правил. Организация строительства, в проект производства работ в обязательном порядке необходимо отразить раздел "Заключительные работы". В нем мы соберем и укажем информацию о том как производится уборка территории и при необходимости восстановление поврежденного растительного слоя;
- Прочие разделы: Конечно мы не забудем создать проработанные разделы по контролю качества, материально-техническим ресурсам, технико-экономическим показателям и охране труда.
Важно отметить, что каждый конкретный проект установки шпунтованного ограждения может иметь свои особенности и требования, которые необходимо учитывать при разработке ППР.
ППР на ограждение из шпунта Ларсена
Технологическая последовательность устройства ограждения из шпунта Ларсен включает несколько этапов, которые необходимо отразить в ППР для достижения оптимального результата.

На первом этапе мы мы опишем область применения проекта, расскажем о его целях и назначении.
Далее мы включим в состав ППР раздел в котором раскроем технологию для очистки и подготовки территории под ограждения.
Затем мы разработаем качественный раздел по технологии производства работ, который будет учитывать все нюансы исходного проекта - рабочей документации, иметь глубокую привязку к уникальному строительному объекту и отражать всю специфику условий работ конкретной строительной компании.
В разделе контроля качества специалисты нашей компании подробно и в табличной форме покажут параметры, которые будет необходимо проконтролировать ИТР строительной компании, а также мы расскажем о методах такого контроля и создадим спецификацию инструментов и оборудования, необходимо для выполнения этих работ.
Также в наши проекты мы в обязательном порядке включаем раздел материально-технические ресурсы. В нем мы предоставим в табличной форме номенклатуру используемых инструментов, оснастки и механизмов, а также пропишем марки и модели используемой специализированной строительной техники.
В заключительной части документа мы опишем важные мероприятия для соблюдения требований охраны труда на вашем объекте, в том числе для работ на высоте (при выявлении опасных факторов). Мы опишем требования для работы с ручным инструментом и электроинструментом, электробезопасность и пожарную безопасность ведения работ на вашем объекте.
Обращайтесь в нашу компанию и вы получите отличный сервис и внимание к вашему проекту. Мы сэкономим ваше время и возьмем все тяготы, связанные с разработкой и согласованием ППР на устройство шпунтового ограждения на себя.
ППР на шпунтовое ограждение котлована

Проект Производства Работ (ППР) на шпунтованное ограждение котлована - это документ, который разрабатывается для того, чтобы описать все этапы установки шпунтованного ограждения вокруг котлована на строительной площадке. Этот документ разрабатывается и утверждается специалистами, занимающимися строительством, и составляется с учетом специфики ведения работ на конкретной строительной площадки.
Специалисты нашей компании понимают что ППР на шпунтованное ограждение котлована является важным документом для успешной реализации проекта строительства и обеспечения безопасности на строительной площадке. Его разработка и утверждение должны производиться до начала работ на строительной площадке, чтобы обеспечить четкость и стабильность выполнения работ, снизить возможные риски и улучшить итоговый результат. В процессе выполнения работ на строительной площадке, ППР на шпунтованное ограждение котлована должен использоваться как основной ориентир для контроля выполнения работ, чтобы обеспечить соответствие всем требованиям и спецификациям.
Кроме того, важно учитывать, что ППР на шпунтованное ограждение котлована должен регулярно обновляться и дополняться в соответствии с изменениями в проекте строительства и условиях строительной площадки. В случае если происходят изменения в проекте строительства или появляются новые условия на строительной площадке, необходимо обновлять ППР на шпунтованное ограждение котлована и вносить соответствующие изменения в работу на строительной площадке.
Таким образом, ППР на шпунтованное ограждение котлована является ключевым документом, который обеспечивает безопасность работников, эффективность и качество выполнения работ, а также позволяет контролировать выполнение работ в соответствии с проектом строительства и требованиями. Учитывая все это мы ответственно подходим к разработке ППР и всегда доводим проект до финальной стадии его принятия конечным заказчиком.









































