ППР48
 

Разработка ППР на строительство фундаментов

От 2х дней. От 25 тысяч рублей. Бесплатное устранение замечаний. 100% гарантия согласования. 
ППР на фундаменты предназначен для описания процессов нулевого цикла, выполняемых после подготовки основания. Заказать разработку ППР можно здесь.

Разработка ППР состоит из нескольких технологических карт

Виды проектов производства фундаментных работ

Наша компания оказывает комплекс услуг по разработке проектов производства работ (ППР) на устройство фундаментов различных типов и назначений.

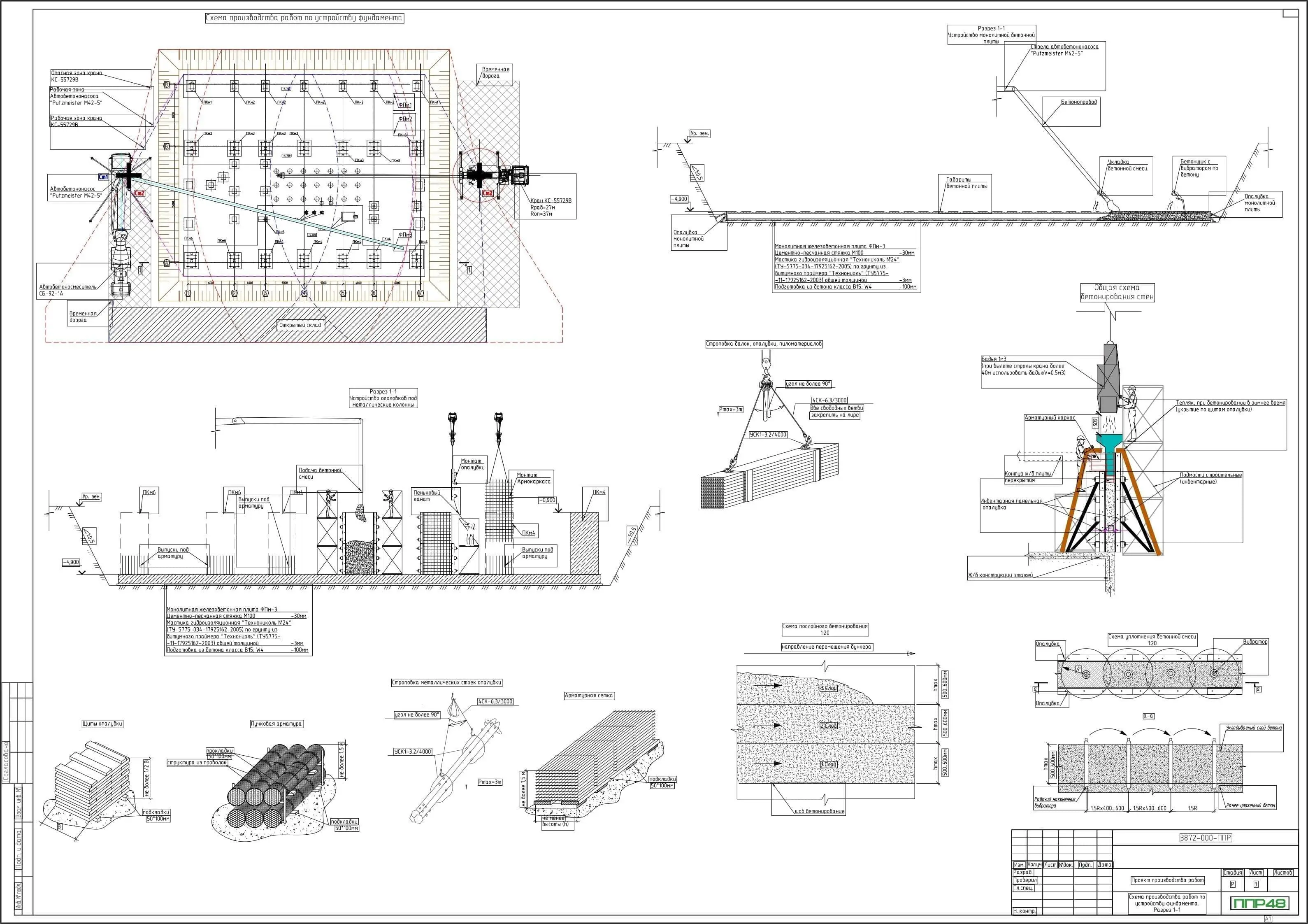
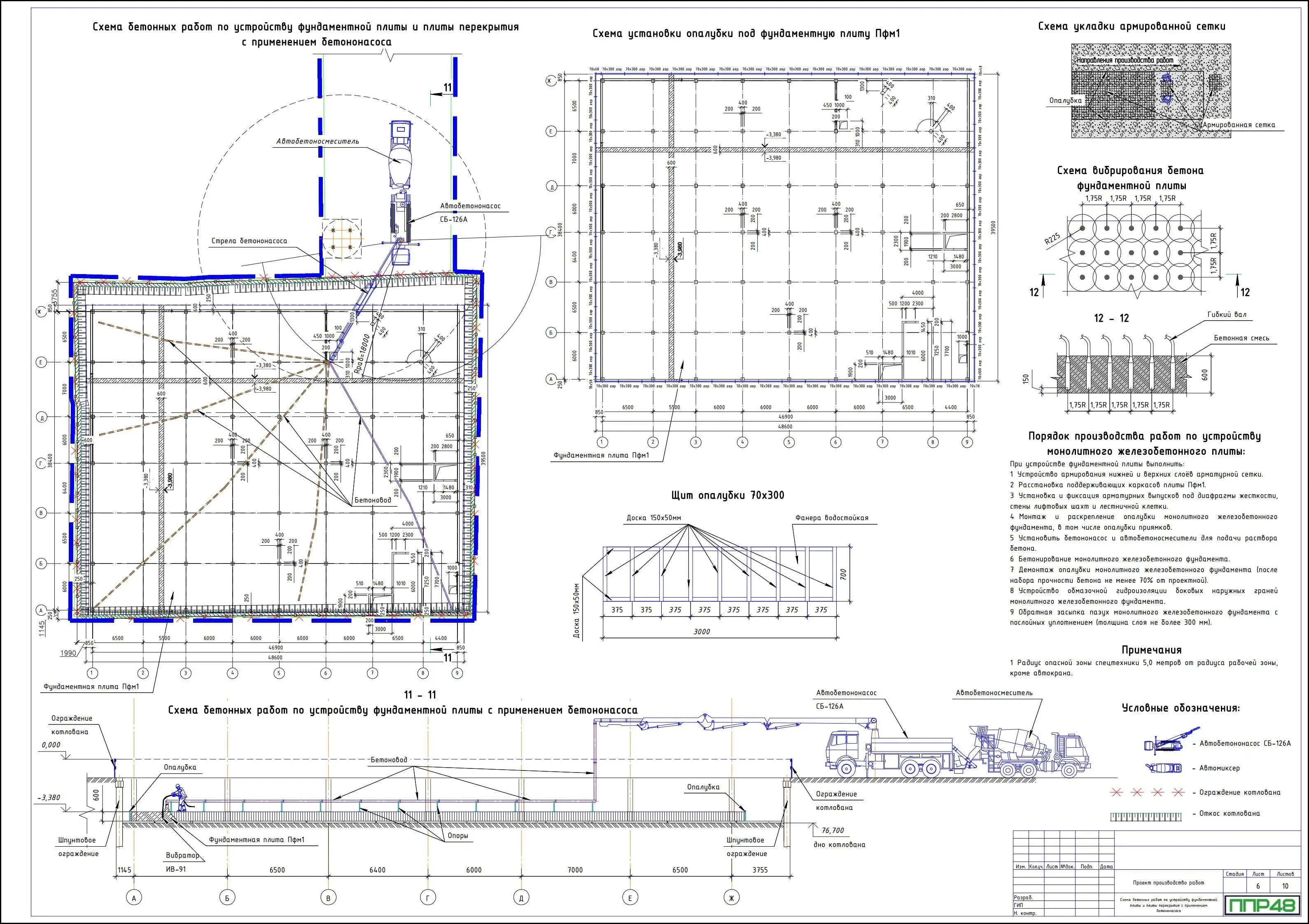
Вот основные виды проектов, с которыми мы работаем: ППР на бетонирование монолитных фундаментов любых типов и видов; ППР на бетонирование монолитной фундаментной плитыППР на устройство ленточного фундаментаППР на устройство столбчатого фундаментаППР на устройство свайных фундаментовППР на устройство монолитных ростверковППР на монтаж сборного фундамента из ЖБИ изделий; ППР на монтаж фундамента башенного кранаППР на демонтаж фундаментов задний и сооружений, в том числе; трансформаторов; ППР на гидроизоляцию фундаментовППР на пристенный дренаж фундаментов; ППР на усиление фундаментов при реконструкции дома.

При подготовке проектов мы обязательно принимаем во внимание специфические технические условия заказчика, например, ограниченное пространство на площадке или необходимость выполнения работ в охранных зонах инженерных коммуникаций. Такой подход позволяет адаптировать документацию к требованиям всех контролирующих и эксплуатационных организаций, что способствует успешному и более быстрому согласованию ППР.

проект производства работ (ППР) на устройство фундамента

Особенности разработки ППР для устройства и монтажа фундаментов

Существует несколько основных типов фундаментов: ленточные, столбчатые и плитные. По способу устройства, железобетонные фундаменты подразделяются на сборные, монолитные и сборно-монолитные. Перед началом монтажа фундаментов из сборного железобетона необходимо изготовить проект и включить в его состав ТК на монтажные операции.

ППР на устройство монолитных фундаментов состоит из нескольких основных технологических карт:

Подробный ППР на нулевой цикл строительства здания можно получить здесь.

ППР на фундаментные работы

Формирование стоимости и сроков разработки коммерческого предложения на ППР по строительству фундаментов определяется рядом технических факторов:

  1. Объём и конструктивная сложность фундаментов
    Значительный объем работ, а также наличие сложных конструктивных решений (нетиповые фундаменты, работы в ограниченных пространствах и т.д.) ведёт к росту трудоёмкости выполнения проекта и увеличению сроков выпуска документации.
  2. Степень проработанности и полнота исходной информации
    Достаточный объём предоставленных исходных данных (рабочие чертежи, результаты инженерно-геологических изысканий, техническое задание, ПОС и наличие ред. формата) позволяет оптимизировать сроки подготовки ППР. Отсутствие или недостаточная комплектность исходной документации приводит к необходимости в дополнительных согласованиях и корректировках, что влияет на формирование ценообразования и итоговую стоимость документации.
  3. Наличие специальных требований и ограничений
    Работа в стеснённых условиях, в зоне действующих коммуникаций или с особыми требованиями промышленной и экологической безопасности требует применения дополнительных организационно-технологических решений и итераций согласований, что может также повлиять на трудоемкость подготовки проекта.

Примечание:
Итоговая стоимость и сроки разработки ППР по строительству фундаментов формируются индивидуально на основании анализа полного пакета предоставленных исходных данных.

Купить экземпляр готового ППР по ССЫЛКЕ.

Сколько стоит разработка проекта производства работ на бетонирование фундаментов?

 Устройство фундаментов

Формат PDF
От 26.000р.
В зависимости от типа конструкции, в состав проекта входят технологические карты на ее монтаж или устройство. Документ выпускается для случаев с подготовленным основанием.

Основание + фундаменты

Формат PDF
От 38.000р.
В состав проекта входят технологические карты на монтаж или устройство конструкции (в зависимости от ее типа), а также мероприятия по разработке грунта котлована и устройству слоев основания.

Наши проекты

Проект производства работ (ППР) обязателен при выполнении фундаментных работ согласно российскому законодательству и нормативным актам. Этот документ регламентирует процесс выполнения, последовательность операций и меры безопасности при строительстве фундаментов.

Документ, предписывающие обязательную разработку проектов производств работ ППР:

  • СП 48.13330.2019 "Организация строительства" указывает, что все строительные работы, включая работы с фундаментами (рытье котлованов, армирование, бетонирование, монтаж сборных элементов и пр.), должны вестись только по утвержденному ППР.
  • Приказ Минтруда России от 01.06.2015 № 336н "Правила по охране труда в строительстве, реконструкции и капитальном ремонте объектов капитального строительства" требует наличия специальных инструкций по безопасности при монолитных и монтажных работах, что также отражается в ППР.
  • Те же самые требования приводятся в СП 74.13330.2021 «Земляные сооружения, основания и фундаменты».

Пункт 5.1.1 "Земляные работы должны выполняться в соответствии с проектной документацией, проектом организации строительства (ПОС), проектом производства работ (ППР), рабочими чертежами и настоящим сводом правил.

"Пункт 5.1.3: "Земляные работы следует выполнять по проекту производства работ (ППР), разработанному в соответствии с СП 48.13330.2019 и настоящим сводом правил, а для временных земляных сооружений — по рабочим чертежам и указаниям ППР."

Краткий вывод

ППР при устройстве и монтаже фундаментов обязателен, поскольку эти операции связаны с использованием техники и механизмов, повышенным риском для работников, необходимостью контролировать технологию и безопасность. Ведение бетонных работ без ППР — нарушение действующих правил, влекущее риск штрафов, остановки строительства или аварийных ситуаций.

Для подготовки проекта производства работ (ППР) на строительство фундаментов необходимо предоставить проектную документацию на стадии «Р» или рабочие чертежи фундаментов, включающие общестроительные планы, разрезы, схемы армирования, спецификации и основные узлы.

Следующим шагом предоставляется проект организации строительства (ПОС) со строительным генеральным планом строительства, с отражением расположения фундаментов, границами строительной площадки, трасс подъездных путей, зон складирования материалов и мест установки строительной техники. В случае отсутствия ПОС, предоставляется ситуационный план с привязкой фундаментов, топографическая съемка.

Для планирования технологического процесса требуется перечень и технические характеристики строительной техники и оборудования, которые будут задействованы в работах, включая, при необходимости, автокраны, экскаваторы, бетононасосы, вибраторы, опалубочные системы и инструменты для монтажа арматуры.

Также мы рекомендуем нашим заказчикам отправлять нам ведомость объемов работ по устройству фундаментов и календарный график производства работ. Желательно приложить фото текущего состояния строительной площадки, существующих конструкций и зон будущего строительства фундаментов. Если имеются специально разработанные стандарты организации или ее регламенты, их также следует приложить.

В случае наличия особых условий производства (например, бетонные работы в зимний период, при высоком уровне грунтовых вод, в стесненных или особо охраняемых зонах) требуется привести пояснения о наличии погодных, температурных или гидрологических ограничений, а также список специальных согласований, если это предусматривается проектом.

Полнота и детальность предоставленных сведений существенно ускоряют процесс подготовки качественного ППР и обеспечивает наискорейшее согласование документа.

  • Титульный лист
  • Лист согласования
  • Лист ознакомления
  • Пояснительная записка
  • 4.1. Назначение и область применения ППР
  • 4.2. Организация и подготовка строительного городка и площадки
  • 4.3. Технология производства работ (технологические карты)
  • 4.3.1. Технологическая карта на сопутствующие работы (например, подготовка основания, гидроизоляция и т.д.) *при необходимости
  • 4.3.2. Технологическая карта на устройство фундаментов (монолитных, сборных, свайных и др.) *в зависимости от проектных решений
  • 4.4. Контроль качества работ (входной, операционный, приемочный контроль)
  • 4.5. Расчет материально-технических ресурсов (состав бригад, техника и механизмы, спецификация оборудования и расходных материалов)
  • 4.6. Мероприятия по охране труда при выполнении работ по устройству фундаментов
  • .6.1. Охрана труда при работе с подъемными сооружениями и спецтехникой
  • 4.7. Мероприятия по пожарной безопасности
  • 4.8. Электробезопасность
  • 4.9. Мероприятия по охране окружающей среды
  • Графики
  • 5.1. Календарный график производства работ
  • 5.2. График поступления материалов и оборудования
  • 5.3. График движения рабочих кадров
  • 5.4. График движения основных строительных машин по площадке
  • Ведомость ссылочных документов
  • Приложения
  • Организационно-технологические схемы и чертежи:
  • 7.2. Технологические схемы работы людей и техники
  • 7.3. Схемы строповок материалов и оборудования
  • 7.4. Схемы складирования материалов, изделий и оборудования

Отзывы наших клиентов

ПОЛУЧИТЕ
КОММЕРЧЕСКОЕ
ПРЕДЛОЖЕНИЕ

ГАРАНТИРУЕМ
100% СОГЛАСОВАНИЕ

СРОК ИЗГОТОВЛЕНИЯ
ОТ 2-х ДНЕЙ

ПРЕДЛАГАЕМ
ИНДИВИДУАЛЬНЫЙ ПОДХОД

  • Вам нужны качественные услуги, для получения согласования со 100% гарантией?
  • Требуется выполнить пояснительные записки и чертежи не только для проверок, но и для использования на объекте?
  • Необходимо сориентироваться по стоимости разработки строительной документации?

Ответьте на несколько вопросов по вашему проекту и получите коммерческое предложение, оптимизированное под ваш случай!

Также наша компания занимается созданием технологических карт (ТК) на погрузо-разгрузочные работы