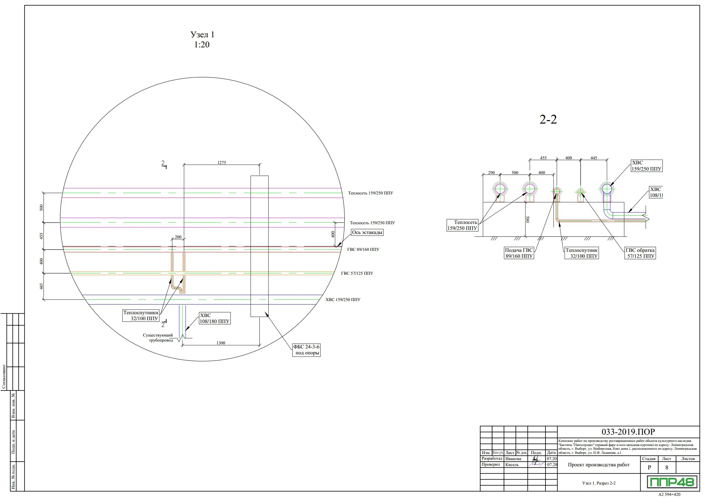
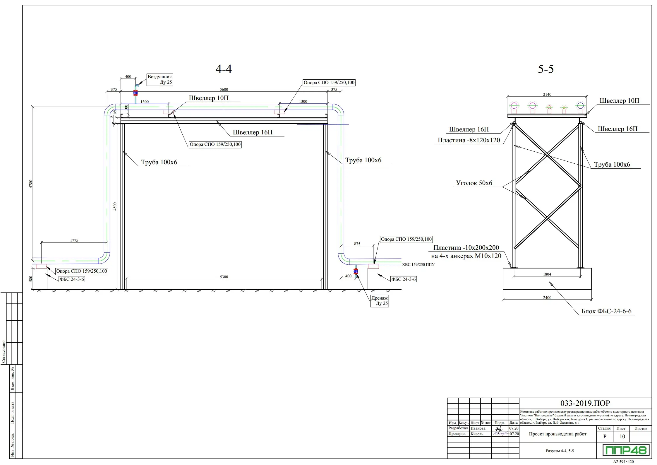
ППР на реконструкцию бастиона Панцерлакс 1579—1580 г.
Нашей компанией выполнен ППР на реконструкцию объекта культурного наследия в г. Выборг (Ленинградская область). Перед началом выполнения работ по разработке проекта, наши специалисты осуществили выезд на объект с целью уточнения специфики предстоящих работ и сбора недостающих исходных данных.
Историческая справка:
Бастион возведён 1579—1580 годах в качестве важнейшего элемента в системе построенных во второй половине xvi века на побережье выборгского залива крепостных сооружений. Очертания новых укреплений напоминали рога животного, поэтому пристроенную к каменному городу крепость стали называть Рогатой. А оборонявший правый фланг крепости «Рог» получил название Панцерлакс (швед. «панцирь (щит) залива»). На фасах остроугольного бастиона были установлены пушки. Шесть бойниц, расположенных в три яруса, предназначались для ведения огня вдоль юго-восточной куртины крепости.
Большую роль в системе укреплений играл каземат в левом фланке бастиона высотой 10 м, толщиной внешней стены у основания — 3,5 м, а на верхнем ярусе — 2 м. Четырёхъярусное сооружение в xvi—xviii вв. предназначалось для размещения артиллерии (на трёх внутренних ярусах, разделённых деревянными перекрытиями, и на крыше). На засыпанной землёй бревёнчатой крыше за земляным бруствером на деревянном настиле стояли пушки. На уровне нижнего яруса каземата был сложен сводчатый проход — сортия, который использовался по назначению вплоть до середины xix века, после чего внешние ворота были заложены кирпичом.
Пороховой погреб
При императрице Екатерине 2 бастион был отремонтирован. В 1782 году к крепостным сооружениям был пристроен новый пороховой погреб. В дальнейшем, с разрастанием города, бастион постепенно утратил оборонное значение. Поблизости появились промышленные и жилые здания; новый городской район у бастиона также стал называться Панцерлакс. в 1860-х годах сооружения рогатой крепости, мешавшие развитию городской застройки, были разобраны, однако бастион Панцерлакс сохранили. В то время как Выборгский замок находился в руинах, крепостной флаг поднимался на Панцерлаксе. Но в начале 20 века бастион перешёл от военного ведомства гражданским властям.
Он был использован в качестве фундамента для здания городского художественного музея и школы искусств, построенного в 1930 году. Тогда же пороховой погреб приспособили под художественные мастерские. В 1927 и в 1930-х годах в бастионе проводились реставрационные работы, однако казематы бастиона длительное время не имели практического применения. В 1980-х годах по проекту архитектора И. А. Хаустовой снова была проведена реставрация бастиона, и в 1988 году в бывшем пороховом погребе открылось кафе.
С2010 года в здании музея и школы искусств размещается музейный центр «Эрмитаж-Выборг», под экспозиции которого переданы и помещения бастиона. С 2013 года в пороховом погребе размещается экспозиция, посвящённая городской археологии, а с 2018 года в качестве музейного объекта открыт для посетителей и каземат в левом фланке бастиона.


































